



Empezando desde planta baja, el típico lobby empresarial excusivo se transforma en un paseo público, conecta la vía del lado oeste con el lago en el norte.
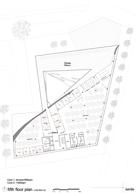
A medida que el atrio rota y se eleva, ofrece otros programas públicos a lo largo de su superficie reglada: cafeterías, gimnasio, terrazas cubiertas y salones.
El atrio rotatorio también actúa como un receptor de luz, tomando la luz a lo largo de su rotación, iluminando la superficie reglada y reflejando la luz en el corazón del edificio.


The ongoing transformation of Kurla in north Mumbai, India is characterized by the relentless proliferation of new office blocks, where the typical 5-6 storey blocks adopts the exclusive corporate lobbies as a strategy to import the image of the CBD into this former small industrial area.

Chris Lee and Kapil Gupta of UK serie architects seek to resist this tendency with their project to create a clear separation between the public and the existing city and the projected and exclusive corporate entity. their proposal begins with the rethinking of the lobby and atrium of typical office blocks.

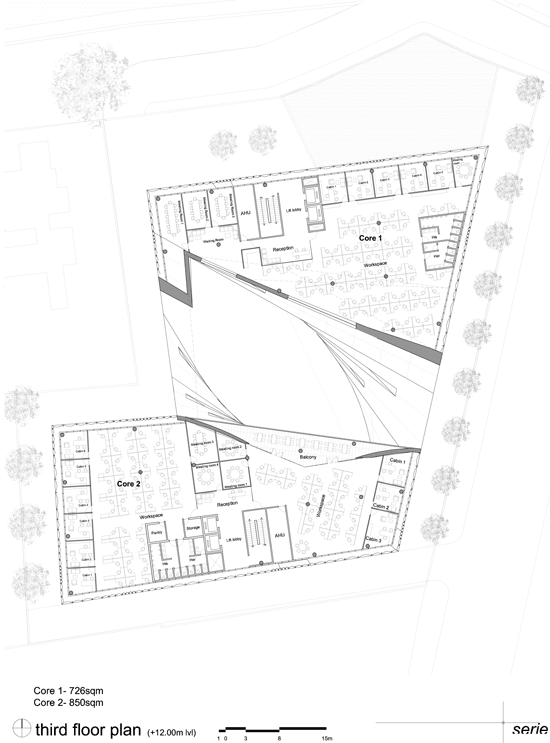
The RC office can be seen as a single office block, sliced open into 2 smaller blocks but brought back together by a public void. The main atrium and lobby space as the new public void is conceived as a series of rotating volumes articulated by ruled surfaces.

The RC office can be seen as a single office block, sliced open into 2 smaller blocks but brought back together by a public void. The main atrium and lobby space as the new public void is conceived as a series of rotating volumes articulated by ruled surfaces.

At each different rotation, the atrium and lobbies takes on a different programmatic role. Starting from the ground, the typically excusive corporate lobby is transformed into a public promenade, connecting the road on the west side of the site to the existing lake on the north.

As the atrium rotates upwards, it dispenses other public program along its ruled surface: cafes, gym, roof decks and lounges. The rotational atrium also acts as a light catcher, drawing light along its rotation, illuminating the ruled surface and reflecting light into the heart of the building.







project info:
total area: 10,000 sqm
client: rc group india
date: commission. ongoing
design: chris lee / kapil gupta
total area: 10,000 sqm
client: rc group india
date: commission. ongoing
design: chris lee / kapil gupta
No hay comentarios:
Publicar un comentario